Doppelhaushälfte in beliebter Lage von Lübeck-bereits verkauft-
IM ÜBERBLICK
Objekt-ID: 19-101
Grundstück ca.:
549 m²
(Erbbaurecht)
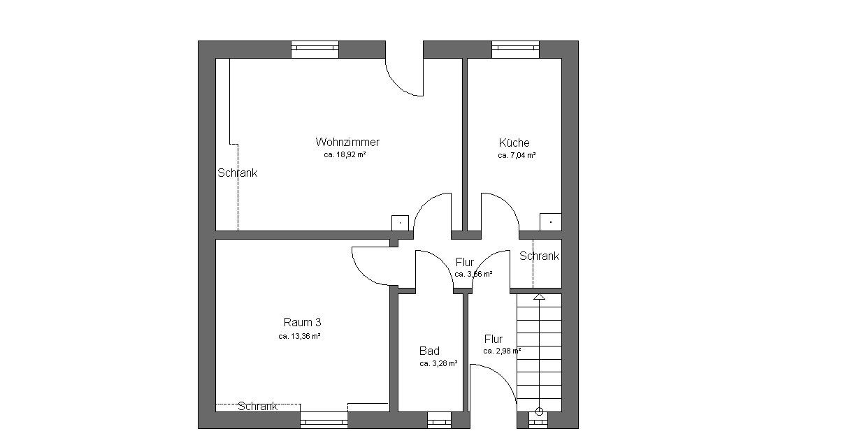
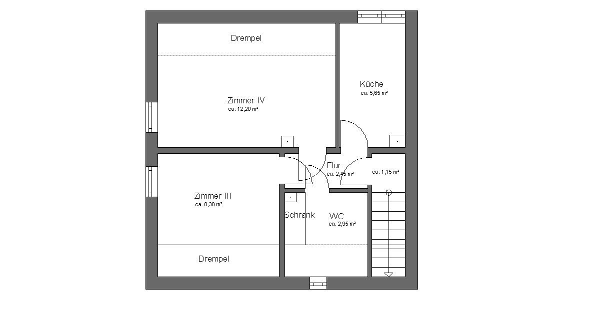
Wohnfläche ca.: 89 m²
Nutzfläche ca: 50 m²
Zimmer: 4
Baujahr:
1950
Erbbauzins:
in Abfrage
Erbbaurecht: bis 31.12.2048
BESCHREIBUNG
Mitten in St. Jürgen und nur wenige Minuten von der Innenstadt entfernt liegt diese Doppelhaushälfte. Die ruhige Wohngegend ist bei Familien sehr beliebt. Das Haus bedarf einer Modernisierung und bietet viel Potenzial. Bei dem Grundstück handelt es sich um ein Erbbaugrundstück der Hansestadt Lübeck. Ein aktuelles Kaufangebot ist bereits angefordert und steht in Kürze zur Verfügung.
✓ Küche
✓ Wannenbad
✓ Gäste-WC
✓ Vollkeller
✓ Terrasse
✓ großzügiger Garten
✓ Stellplatz auf dem Grundstück
✓ Kunststofffenster
Energieausweis: Bedarfsausweis
Energiebedarf: 231 kWh/(m²a)
Heizungsart: Ölofen
Energieträger: Öl
Effizienzklasse: G
Energieverbrauch für Warmwasser ist enthalten
Dieses Objekt ist leider nicht mehr verfügbar.













